锘?!DOCTYPE html PUBLIC "-//W3C//DTD XHTML 1.0 Transitional//EN" "http://www.w3.org/TR/xhtml1/DTD/xhtml1-transitional.dtd">
鍚嶇О錛氱僵鍨嬮€氭皵綆?
鏍囩錛?/strong>緗╁瀷閫氭皵綆?/a>
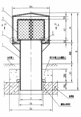
钃勬按姹犮€佹按綆卞簲璁劇疆涓ゆ牴浠ヤ笂鐨勯€氭皵綆′互鎻愰珮鎺掓按緋葷粺鐨勮兘鍔涳紝錛堜婦涓€涓皬渚嬪瓙錛屾墦鐐規淮鐨勬椂鍊欙紝鐡跺彛鏈濅笅娑蹭綋瑕佹祦鍑猴紝蹇呴』鎻掍竴鏍歸€氭皵綆★紝涓€绔€氬ぇ姘旓紝涓€绔€氭恫闈笌鐡跺簳涔嬮棿鐨勭┖闅欙紝闃叉綆¢亾鍐呭艦鎴愯礋鍘嬶紝淇濊瘉鎺掓按閫氱晠錛夐槻姝⑩€?
緗╁瀷閫氭皵綆℃€ц兘鍙垎涓哄洓鐐癸細
銆€銆€1銆佸皢鎺掓按綆¢亾鍐呯殑鏈夋瘨鏈夊姘斾綋鎺掓斁鍑哄幓錛屼互婊¤凍鍗敓瑕佹眰錛?/p>
銆€銆€2銆侀€氭皵綆″悜钃勬按姹犮€佹按綆卞強鎺掓按綆¢亾鍐呰ˉ鍏呮柊椴滅┖姘旓紝浠ュ噺杞婚噾灞炵鐨勮厫铓€錛屽歡闀夸嬌鐢ㄥ鍛斤紱
銆€銆€3銆佽搫姘存睜銆佹按綆卞簲璁劇疆涓ゆ牴浠ヤ笂鐨勯€氭皵綆′互鎻愰珮鎺掓按緋葷粺鐨勮兘鍔涳紝錛堜婦涓€涓皬渚嬪瓙錛屾墦鐐規淮鐨勬椂鍊欙紝鐡跺彛鏈濅笅娑蹭綋瑕佹祦鍑猴紝蹇呴』鎻掍竴鏍歸€氭皵綆★紝涓€绔€氬ぇ姘旓紝涓€绔€氭恫闈笌鐡跺簳涔嬮棿鐨勭┖闅欙紝闃叉綆¢亾鍐呭艦鎴愯礋鍘嬶紝淇濊瘉鎺掓按閫氱晠錛夐槻姝㈡姘村艦鎴愶紝涓插懗錛屽噺杞繪皵鍘嬫嘗鍔ㄥ箙搴︼紝淇濇姢姘村皝錛岄槻姝㈡按灝佺牬鍧忋€?/p>
銆€銆€4銆佽兘蹇€熷湴灝嗚搫姘存睜鍙婃按綆卞唴鐨勬按钂告皵鍙婃湁瀹蟲皵浣撴帓鍑猴紝鍐呯疆綰卞竷綰辯綉鑳芥湁鏁堢殑闃繪闃叉鐥呭獟銆佹槅铏拰灝樺焹榪涘叆浠ョ牬鍧忔按璐ㄣ€?/p>

緗╁瀷閫氭皵綆$殑瑙勬牸錛?/strong>
銆€銆€鍨嬪彿錛氥€€Z-200銆乑-300銆乑-400銆乑-600
銆€銆€楂樺害錛欻3=0 銆丠3=500銆丠3=1000
銆€銆€Z-200銆丠3=0楂樺害890 銆丠3=500楂樺害1380銆丠3=1000楂樺害1890
銆€銆€Z-300銆丠3=0楂樺害1000 銆丠3=500楂樺害1500銆丠3=1000楂樺害2000
銆€銆€Z-400銆丠3=0楂樺害1120 銆丠3=500楂樺害1620銆丠3=1000楂樺害2120
銆€銆€Z-600銆丠3=0楂樺害1450 銆丠3=500楂樺害1950銆丠3=1000楂樺害2450
緗╁瀷閫氭皵綆′嬌鐢ㄨ鏄庯細
銆€銆€1銆侀€氭皵綆¤璁℃皵浣撴祦閫熶負5m/s錛岃繃婊わ紙緗戙€佸竷錛夊眰姘斾綋騫沖潎嫻侀€熶負0.75m/s錛屾護緗戝竷瀹夎鏃跺簲閲囩敤鍚岀瓑鏉愭枡榪涜緙濆悎錛屽唴緗╁彲鐢ㄦ棤姣掗潪閲戝睘鏉愭枡鍒朵綔錛?nbsp;
銆€銆€2銆侀€氭皵綆℃寜瑕嗗湡灞傚帤搴︼紙H3錛?.0m銆?.5m銆?.0m涓夌璁捐錛?.0m閫傜敤浜庡崡鏂瑰湴鍖猴紝0.5m閫傜敤浜庝腑閮ㄥ湴鍖猴紝1.0閫傜敤浜庡瘨鍐峰湴鍖恒€?nbsp;
銆€銆€3銆佺剨鎺ュ悗鐨勯櫎閿堛€侀槻鑵愯姹傛牴鎹鎴瘋璁¤姹傚埗浣溿€?nbsp;
銆€銆€4銆佹湁鏉′歡鍦板尯閫氶甯藉彲鏍規嵁璁捐瑕佹眰閲囩敤鐜葷拑閽㈡垨涓嶉攬閽㈡潗鏂欏埗浣滐紝浠ヨ揪鍒版洿濂界殑闃茶厫騫跺歡闀夸嬌鐢ㄥ鍛姐€?/p>
緗╁瀷閫氭皵綆¢€傜敤浜庤搫姘存按姹犲強姘寸瀹夎銆傜僵鍨嬮€氭皵綆′負浣挎帓姘寸郴緇熷唴絀烘皵嫻侀€氾紝鍘嬪姏紼沖畾錛岄槻姘村皝鐮村潖鑰岃緗殑涓庡ぇ姘旂浉閫氱殑綆¢亾銆?/p>
濡傞渶鏈€鏂版暟鎹鑱旂郴鍦ㄧ嚎瀹㈡湇
娌沖崡鑹紬綆′笟鏈夐檺鍏徃 鎵嬫満鍙鳳細18638277136 鍥鴻瘽錛?371-64018718 浼犵湡錛?nbsp;0371-64018718 閭錛?50165323@qq.com 鍦板潃錛氬琺涔夊競瑗挎潙闀囪タ鏉?nbsp; 緗戝潃錛?a href="http://www.educard.com.cn" target="_self">http://www.educard.com.cn
娌沖崡鑹紬綆′笟鏈夐檺鍏徃
鎵嬫満鍙鳳細18638277136(閿€鍞檲緇忕悊)
13849173666(鎶€鏈儴闄堝伐錛?/p>
閭錛歨nlzpipe@126.com
鍥鴻瘽錛?371-64018718
鍦板潃錛氬琺涔夊競瑗挎潙闀囪タ鏉?/p>
緗戝潃錛歨ttp://www.educard.com.cn
鎵簩緇寸爜鑱旂郴鍦ㄧ嚎瀹㈡湇娌沖崡鑹紬綆′笟鏈夐檺鍏徃 鑱旂郴鐢佃瘽錛?8638277136 13849173666 閭錛歨nlzpipe@126.com 鍦板潃錛氬琺涔夊競瑗挎潙闀囪タ鏉? 緗戝潃錛?a href="http://www.educard.com.cn" target="_self">http://www.educard.com.cn 澶囨/璁稿彲璇佸彿錛?璞獻CP澶?8020186鍙?/a> 鎶€鏈敮鎸侊細鑹紬緗戠粶閮?/p>